Pomp Properties - Book a Valuation

3 bedroom property for sale

Blantyre Walk, Worlds End Estate, London

For Sale

Offers Over £799,000

Full description

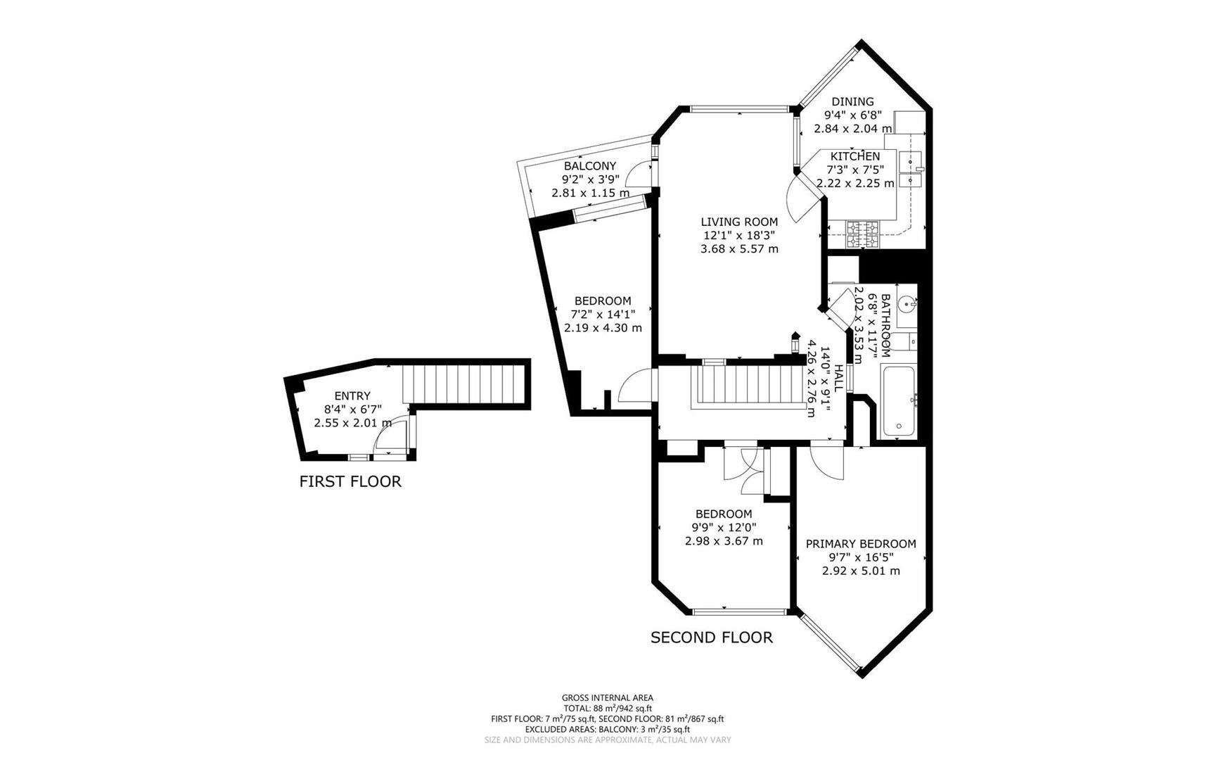
Presenting a newly-built flat for sale in Chelsea Riverside. The property is situated on Worlds End Estate and comprises 3 bedrooms and 1 bathroom. This modern, spacious, well-located, well-maintained property covers 942 sq ft of living space and is situated on the second floor (the entrance is on the first floor).

The property boasts big windows, a balcony, and a very central location, good transport links, a good choice of local shops and restaurants. Additional features and amenities of this property include:

- Security
- An elevator
- A private communal garden
- Freezer
- Washer

This property would make for an ideal home or a great investment. It has a current EPC rating of C and is within walking distance of Fulham Broadway Tube Station.

Don't miss out on the opportunity to own this amazing property in the heart of Worlds End. Contact us today to schedule a viewing!


Nearest Schools

List of nearest schools to this property.

* Distances are straight line measurements.

  • 2 Key Stage 2

    Ashburnham Community School - 0.07 miles

  • 4 Key Stage 4

    Chelsea Academy - 0.29 miles

  • 5 Key Stage 5

    Chelsea Academy - 0.29 miles

Nearest Public Transport

List of nearest public transport to this property.

* Distances are straight line measurements.

  • Train Station

    Imperial Wharf Rail Station - 0.46 miles

  • Airport

    London City Airport - 9.93 miles

  • Coach Station

    Earls Court (London): Coach Stop - 0.99 miles

  • Ferry Port

    Chelsea Harbour Pier - 0.48 miles

Contact us about this property
This Area
Stamp Duty

You will have to pay in stamp duty.

Please note the above figure will be different if you are purchasing this as an additional property.

Get an approximate price instantly?
Or a more accurate price from a Home visit?

Book a Valuation