Pomp Properties - Book a Valuation

2 bedroom property to let

Queensway, London

Let Agreed

£2,900 Per Month

Full description

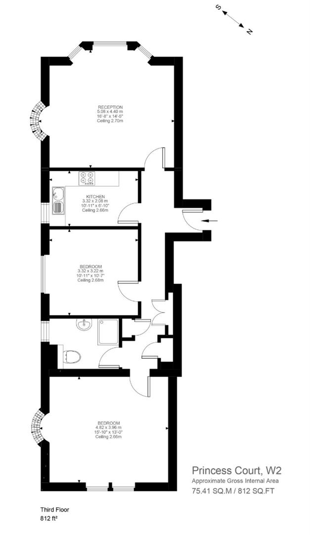
A fantastic two-bedroom, one-bathroom lateral apartment occupying the fourth floor of the highly sought-after Princess Court, nestled on Queensway in the heart of Bayswater.

This property is offered on a furnished basis and features a generously proportioned reception room, a separate kitchen with a dining area, two spacious double bedrooms, and a contemporary bathroom. The apartment boasts a well-designed corridor with built-in storage solutions, and each bedroom offers ample free-standing storage.

Princess Court enjoys a prime location on Queensway, with immediate proximity to Hyde Park, Westbourne Grove, and the convenience of both Queensway and Bayswater underground stations just a stone's throw away.


There is currently no epc for this property.

Nearest Schools

List of nearest schools to this property.

* Distances are straight line measurements.

  • 2 Key Stage 2

    Hallfield Primary School - 0.14 miles

  • 4 Key Stage 4

    Kensington Park School - 0.14 miles

  • 5 Key Stage 5

    Kensington Park School - 0.14 miles

Nearest Public Transport

List of nearest public transport to this property.

* Distances are straight line measurements.

  • Train Station

    London Paddington Rail Station - 0.51 miles

  • Airport

    London City Airport - 10.21 miles

  • Coach Station

    London: Notting Hill Gate Station Coach Stop - 0.35 miles

  • Ferry Port

    Cadogan Pier - 2.25 miles

Contact us about this property
This Area

Get an approximate price instantly?
Or a more accurate price from a Home visit?

Book a Valuation