Pomp Properties - Book a Valuation

studio property for sale

Rutland Gate, London

For Sale

£695,000

Full description

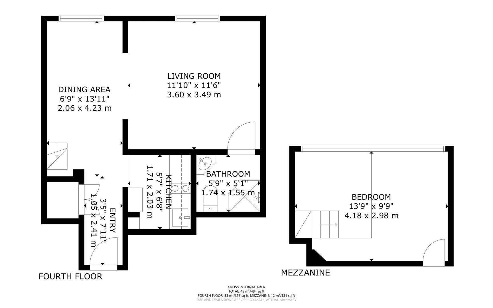
Introducing an exquisite studio flat for sale in the prestigious area of Knightsbridge. Located on the charming Rutland Gate, this fourth-floor property offers a blend of comfort and convenience with its spacious 484 sq ft of living space, perfect for an ideal home or a promising investment.

Key Features:

Bedroom: Situated on a cozy mezzanine, offering a distinct and private sleeping area.
Bathroom: Well-appointed with modern fittings.
Fitted Kitchen: Fully equipped, providing all the essentials for your culinary needs.
Separate Dining Area: A dedicated space for meals and entertaining guests.
Highlights:

Big Windows: Flooding the flat with natural light and offering delightful views.
Ample Storage: Cleverly designed storage solutions to keep your living space tidy and organized.
Central Location: Nestled in the heart of Knightsbridge, ensuring easy access to all the area has to offer.
Good Transport Links: Within walking distance to Knightsbridge Tube Station, making commutes a breeze.
Local Amenities: Surrounded by an excellent choice of shops, restaurants, and cafes.
Proximity to Hyde Park: Enjoy leisurely walks or outdoor activities in one of London's most famous parks.
Don't miss out on this exceptional opportunity to own a prime property in one of London's most sought-after neighborhoods. Contact us today to schedule a viewing and experience the allure of Knightsbridge living firsthand!


Nearest Schools

List of nearest schools to this property.

* Distances are straight line measurements.

  • 2 Key Stage 2

    Marlborough Primary School - 0.5 miles

  • 4 Key Stage 4

    More House School - 0.4 miles

  • 5 Key Stage 5

    More House School - 0.4 miles

Nearest Public Transport

List of nearest public transport to this property.

* Distances are straight line measurements.

  • Train Station

    London Victoria Rail Station - 1.06 miles

  • Airport

    London City Airport - 9.37 miles

  • Coach Station

    London Victoria Coach Station - 0.91 miles

  • Ferry Port

    Cadogan Pier - 1.15 miles

Contact us about this property
This Area
Stamp Duty

You will have to pay in stamp duty.

Please note the above figure will be different if you are purchasing this as an additional property.

Get an approximate price instantly?
Or a more accurate price from a Home visit?

Book a Valuation